Juliette Bouchard at Paragon Realtors - 214-732- 6602
MLS: 21066889 $135,000
2 Bedrooms with 1.10 Baths1821 E GRAUWYLER E ROAD #192
IRVING TX 75061MLS: 21066889
Status: ACTIVE WITH CONTINGENCY
List Price: $135,000
Price per SQFT: $125
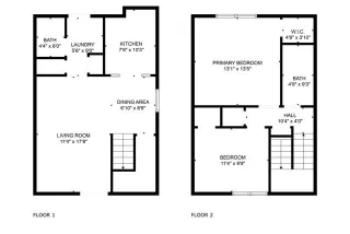
Square Footage: 10842 Bedrooms
1.10 Baths
Year Built: 1957
Zip Code: 75061
Listing Remarks
Welcome to Coventry Village! Beautifully updated 2 bedroom, 2 bath condo! Updates include fresh paint, counter tops, luxury vinyl plank flooring, stainless appliances and more! Great floorplan with plenty of dining and living space! Roof was replaced in 2024. HOA includes ALL utilities and maintenance of HVAC. Great sized patio area. Conveniently located with quick access to HWY 183 and Loop 12.
Address: 1821 E GRAUWYLER E ROAD #192 IRVING TX 75061
Listing Agent: KEN BENNETT of SUMMIT RESIDENTIAL SERVICES, L 469-364-9898
Condo Mania Agent
Juliette Bouchard
Paragon Realtors
Real Estate Agent - TREC #0538623
Phone: 214-732-6602
Request More Information
Listing Details
BATHS FULL: 1 BATHS HALF: 1 BATHS TOTAL: 1. 10 BEDS TOTAL: 2 SUBDIVISION: Coventry Village RESTRICTIONS: Unknown Encumbrance(s) STRUCTURAL STYLE: Condo/Townhome ARCHITECTURAL STYLE: Traditional INTERIOR FEATURES: Cable TV Available, Decorative Lighting PARKING FEATURES: Additional Parking, Assigned ASSOCIATION FEES: $653 ASSOCIATION FEES FREQUENCY: Monthly ASSOCIATION FEE INCLUDES: Electricity, Full Use of Facilities, Maintenance Grounds, Maintenance Structure, Management Fees, Sewer, Trash, Utilities, Water ASSOCIATION TYPE: Mandatory LISTING AGENT: Ken Bennett LISTING OFFICE: Summit Residential Services, L LISTING CONTACT: 469-364-9898
Estimated Monthly Payments
List Price: $135,000 20% Down Payment: $27,000 Loan Amount: $108,000 Loan Type: 30 Year Fixed Interest Rate: 6.5 % Monthly Payment: $683 Estimate does not include taxes, fees, insurance.
Request More Information
Property Location: 1821 E GRAUWYLER E ROAD #192 IRVING TX 75061
This Listing
Active Listings Nearby
Condo Mania Agent
Juliette Bouchard
Paragon Realtors
Real Estate Agent - TREC #0538623
Phone: 214-732-6602
You Might Also Be Interested In...
The Fair Housing Act prohibits discrimination in housing based on color, race, religion, national origin, sex, familial status, or disability.
Properties marked by
are courtesy of the NTREIS Multiple Listing Service.
Copyright © 2025 North Texas Real Estate Information Systems, Inc. All rights reserved. Certain information contained herein is derived from information which is the licensed property of, and copyrighted by, North Texas Real Estate Information Systems, Inc.
Information Deemed Reliable But Not Guaranteed. The information being provided is for consumer's personal, non-commercial use and may not be used for any purpose other than to identify prospective properties consumers may be interested in purchasing. This information, including square footage, while not guaranteed, has been acquired from sources believed to be reliable.
Last Updated: 2025-11-30 18:22:34
Dallas Condo Mania





