Juliette Bouchard at Paragon Realtors - 214-732- 6602
MLS: 20995412 $202,000
1 Bedroom with 1.10 Baths5626 PRESTON OAKS ROAD #22C
DALLAS TX 75254MLS: 20995412
Status: ACTIVE
List Price: $202,000
Price per SQFT: $221
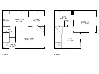
Square Footage: 9121 Bedroom
1.10 Baths
Year Built: 1981
Zip Code: 75254
Listing Remarks
Welcome to Preston Oaks Crossing, gated community located in N Dallas! This 1 bedroom, 2 bath, WITH a loft has been tastefully updated and ready for you! Updates include, granite counter tops, custom cabinets, fresh paint, luxury vinyl plank flooring, stainless appliances and more! Conveniently located near the Galleria, 635 and the DNT, Village on the Parkway and all that Addison has to offer is just a few miles away!
Address: 5626 PRESTON OAKS ROAD #22C DALLAS TX 75254
Listing Agent: KEN BENNETT of SUMMIT RESIDENTIAL SERVICES, L 469-364-9898
Community: PRESTON OAKS CROSSING ... Listing 6 of 10
First -- Next -- Previous -- Last
Condo Mania Agent
Juliette Bouchard
Paragon Realtors
Real Estate Agent - TREC #0538623
Phone: 214-732-6602
Request More Information
Listing Details
BATHS FULL: 1 BATHS HALF: 1 BATHS TOTAL: 1. 10 BEDS TOTAL: 1 SUBDIVISION: Preston Oaks Crossing Condos 01 & 02 STRUCTURAL STYLE: Condo/Townhome ARCHITECTURAL STYLE: Traditional COMMUNITY FEATURES: Community Pool, Perimeter Fencing INTERIOR FEATURES: Cable TV Available, Decorative Lighting, Granite Counters, High Speed Internet Available PARKING FEATURES: Assigned, Common FIREPLACES TOTAL: 1 FIREPLACES FEATURES: Living Room ASSOCIATION FEES: $388 ASSOCIATION FEES FREQUENCY: Monthly ASSOCIATION FEE INCLUDES: Full Use of Facilities, Maintenance Grounds, Maintenance Structure, Management Fees, Sewer, Trash, Water ASSOCIATION TYPE: Mandatory LISTING AGENT: Ken Bennett LISTING OFFICE: Summit Residential Services, L LISTING CONTACT: 469-364-9898
Estimated Monthly Payments
List Price: $202,000 20% Down Payment: $40,400 Loan Amount: $161,600 Loan Type: 30 Year Fixed Interest Rate: 6.5 % Monthly Payment: $1,021 Estimate does not include taxes, fees, insurance.
Request More Information
Property Location: 5626 PRESTON OAKS ROAD #22C DALLAS TX 75254
This Listing
Active Listings Nearby
Condo Mania Agent
Juliette Bouchard
Paragon Realtors
Real Estate Agent - TREC #0538623
Phone: 214-732-6602
You Might Also Be Interested In...
Community: PRESTON OAKS CROSSING ... Listing 6 of 10
First -- Next -- Previous -- Last
The Fair Housing Act prohibits discrimination in housing based on color, race, religion, national origin, sex, familial status, or disability.
Properties marked by
are courtesy of the NTREIS Multiple Listing Service.
Copyright © 2025 North Texas Real Estate Information Systems, Inc. All rights reserved. Certain information contained herein is derived from information which is the licensed property of, and copyrighted by, North Texas Real Estate Information Systems, Inc.
Information Deemed Reliable But Not Guaranteed. The information being provided is for consumer's personal, non-commercial use and may not be used for any purpose other than to identify prospective properties consumers may be interested in purchasing. This information, including square footage, while not guaranteed, has been acquired from sources believed to be reliable.
Last Updated: 2025-11-08 18:22:50
Dallas Condo Mania





